Membangun rumah idaman tidak selalu harus di atas lahan yang sangat luas. Saat ini, desain rumah minimalis 7×9 menjadi primadona bagi keluarga muda di Indonesia.
Dengan luas bangunan sekitar 63 meter persegi, rumah ini menawarkan keseimbangan antara fungsionalitas dan kenyamanan. Anda bisa mendapatkan ruang yang cukup tanpa harus pusing dengan biaya perawatan yang membengkak.
Artikel ini akan membahas secara mendalam berbagai ide denah, fasad, hingga tips membangun agar rumah Anda tampil maksimal.
Mengapa Memilih Desain Rumah Ukuran 7×9?

Ada beberapa alasan kuat mengapa banyak orang melirik desain rumah ukuran 7×9. Pertama, efisiensi lahan. Di area perkotaan yang lahannya semakin mahal, ukuran ini sangat pas untuk kavling standar. Anda tidak membuang banyak ruang, namun tetap merasa lega di dalam rumah.
Kedua, biaya konstruksi lebih terkontrol. Semakin besar bangunannya, tentu material yang dibutuhkan semakin banyak. Dengan rumah 7×9, Anda bisa mengalokasikan budget lebih untuk kualitas material daripada sekadar luas ruangan. Anda bisa memilih lantai granit atau cat dinding premium karena volumenya yang terbatas.
Terakhir adalah kemudahan perawatan. Rumah yang ringkas lebih mudah dibersihkan. Bagi Anda yang memiliki mobilitas tinggi, rumah berukuran 63 meter persegi ini sangat membantu menghemat waktu domestik.
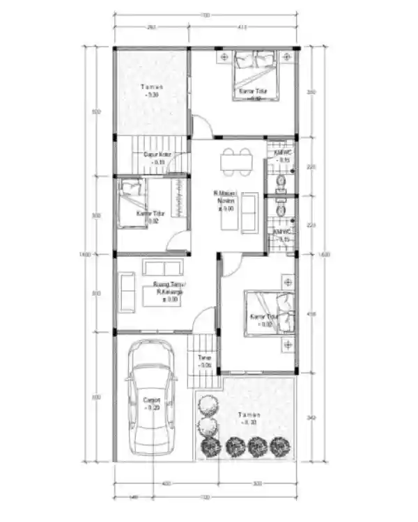
Denah dan Gambar Rumah 7×9 2 Kamar yang Ideal
Bagi keluarga baru atau pasangan yang baru menikah, memiliki gambar rumah 7×9 2 kamar adalah langkah awal yang cerdas. Denah ini memungkinkan setiap ruangan memiliki dimensi yang manusiawi dan sirkulasi udara yang baik.

Pembagian Ruang yang Efektif
Pada denah 2 kamar, Anda bisa membagi area menjadi dua zona utama: zona publik dan zona privat.
-
Zona Publik: Terdiri dari ruang tamu, ruang keluarga, dan ruang makan yang dibuat tanpa sekat (open space).
-
Zona Privat: Dua kamar tidur yang diletakkan bersebelahan atau dipisahkan oleh kamar mandi untuk privasi maksimal.
Keunggulan Layout 2 Kamar
Dengan hanya dua kamar, Anda memiliki keleluasaan untuk memperbesar ukuran ruang tamu. Anda bahkan bisa menambahkan area laundry kecil atau gudang di bagian belakang.
Rumah minimalis 7×9 dengan 2 kamar tidur biasanya memiliki ukuran kamar utama 3×3,5 meter. Kamar kedua bisa berukuran 3×3 meter, sangat cukup untuk kamar anak atau ruang kerja.
Inspirasi Rumah Ukuran 7×9 Tampak Depan yang Elegan

Fasad adalah wajah dari hunian Anda. Menciptakan rumah ukuran 7×9 tampak depan yang menarik tidak harus mahal. Kuncinya ada pada permainan tekstur dan pencahayaan yang tepat.
Berikut adalah beberapa elemen penting untuk mempercantik tampak depan:
-
Permainan Garis Vertikal: Gunakan kisi-kisi kayu atau aluminium untuk memberikan kesan rumah lebih tinggi.
-
Pilihan Warna Cat: Gunakan kombinasi warna monokrom dengan satu warna aksen yang kontras di area pintu utama.
-
Taman Minimalis: Sisakan lahan 1-1,5 meter di depan untuk tanaman hijau agar rumah terlihat asri.
-
Pencahayaan Fasad: Gunakan lampu sorot (up-light) untuk menyoroti tekstur dinding batu alam di malam hari.
Dengan kombinasi ini, desain rumah 7×9 Anda akan terlihat jauh lebih mewah dari ukuran aslinya.
Contoh Rumah Ukuran 7×9 dengan Konsep Open Space

Banyak contoh rumah ukuran 7×9 yang terasa sempit karena terlalu banyak sekat tembok. Untuk mengakalinya, gunakanlah konsep open space. Gabungkan ruang tamu, ruang keluarga, dan ruang makan dalam satu garis lurus.
Gunakan furnitur sebagai pembatas visual. Misalnya, Anda bisa meletakkan karpet atau rak buku rendah untuk memisahkan ruang tamu dengan area menonton TV. Cara ini terbukti efektif membuat rumah sederhana ukuran 7×9 terasa seperti rumah tipe 90.
Jangan lupa untuk menggunakan jendela besar. Kaca transparan yang luas akan memberikan pandangan ke luar, sehingga menciptakan ilusi ruang yang tidak terbatas.
5 Kesalahan Fatal dalam Desain Rumah Ukuran 7×9
1. Mengabaikan Zonasi Ruang Publik dan Privat
Kesalahan yang paling sering ditemui adalah mencampuradukkan area tamu dengan area keluarga. Pada rumah berukuran 7×9, setiap meter persegi sangatlah berharga. Seringkali, pemilik rumah tidak memberi sekat yang jelas antara ruang tamu dan ruang makan. Akibatnya, privasi keluarga terganggu saat ada tamu berkunjung.
Solusi Praktis:
-
Gunakan furnitur sebagai pembatas visual, seperti rak buku atau partisi transparan.
-
Letakkan kamar tidur di sisi bangunan yang lebih tenang.
-
Pastikan akses ke kamar mandi tidak terlihat langsung dari pintu utama.
2. Sirkulasi Udara dan Cahaya yang Buruk
Banyak orang terlalu fokus menambah jumlah kamar tanpa memikirkan ventilasi. Pada desain rumah 7×9 minimalis, kesalahan ini membuat rumah terasa lembap dan gelap. Rumah yang gelap akan memberikan kesan visual yang lebih sempit dari aslinya. Selain itu, biaya listrik akan membengkak karena lampu harus menyala sepanjang hari.
Solusi Praktis:
-
Gunakan konsep cross ventilation dengan menempatkan jendela yang saling berhadapan.
-
Tambahkan skylight kecil di area tengah rumah atau kamar mandi.
-
Pilih kusen jendela yang lebar untuk memaksimalkan cahaya matahari masuk.
3. Pemilihan Ukuran Furnitur yang Tidak Proporsional
Seringkali pemilik rumah ingin memasukkan sofa besar atau tempat tidur king size. Padahal, furnitur berukuran besar adalah musuh utama rumah minimalis 7×9. Furnitur yang terlalu besar akan menutup jalur lalu lintas penghuni rumah. Ruangan akan terasa penuh sesak dan sulit untuk dibersihkan.
Solusi Praktis:
-
Gunakan furnitur multifungsi, seperti tempat tidur dengan laci di bawahnya.
-
Pilih sofa dengan kaki yang ramping untuk memberi kesan ruang yang lebih lega.
-
Ukur ruangan secara detail sebelum membeli barang apa pun.
4. Tidak Memanfaatkan Ruang Vertikal
Kesalahan fatal lainnya adalah hanya fokus pada luas lantai saja. Padahal, dinding rumah bisa dimanfaatkan untuk penyimpanan tambahan. Jika semua barang diletakkan di lantai, rumah 7×9 Anda akan terlihat berantakan. Lemari pakaian yang terlalu lebar juga seringkali memakan ruang gerak yang signifikan.
Solusi Praktis:
-
Buatlah lemari tanam atau rak yang mencapai plafon rumah.
-
Gunakan gantungan dinding untuk alat dapur atau sepeda.
-
Pilih desain rak dinding minimalis yang tidak memakan tempat di bawah.
5. Penempatan Kamar Mandi yang Tidak Efisien
Banyak orang menaruh kamar mandi di lokasi yang memutus aliran ruang utama. Kamar mandi yang terlalu besar juga akan memakan jatah luas kamar tidur. Padahal, rumah ukuran 7×9 membutuhkan distribusi ruang yang sangat efisien. Kesalahan dalam pemipaan juga sering terjadi akibat letak kamar mandi yang tidak terencana.
Solusi Praktis:
-
Letakkan kamar mandi di antara dua kamar tidur untuk memudahkan akses.
-
Pilih ukuran kamar mandi yang kompak, misalnya 1,5 x 2 meter saja.
-
Gunakan pintu geser untuk menghemat ruang buka-tutup pintu.
Tips Membangun Rumah Sederhana Ukuran 7×9 dengan Budget Hemat
Membangun rumah seringkali terkendala masalah biaya. Namun, Anda bisa mewujudkan rumah sederhana ukuran 7×9 dengan anggaran yang lebih efisien jika mengikuti langkah berikut:
-
Pilih Atap Ringan: Gunakan rangka baja ringan dan atap galvalum atau spandek berpasir. Ini jauh lebih murah daripada rangka kayu dan genteng tanah liat.
-
Gunakan Material Alternatif: Pertimbangkan menggunakan bata ringan (hebel) yang pengerjaannya lebih cepat dan hemat semen mortar.
-
Desain Tanpa Banyak Lekukan: Bentuk bangunan kotak (persegi) jauh lebih murah biayanya. Lekukan dinding yang rumit meningkatkan biaya upah tukang dan pembuangan material.
-
Beli Material Sendiri: Cobalah untuk memantau harga material di beberapa toko bangunan. Membeli dalam jumlah banyak biasanya mendapatkan potongan harga khusus.
Penerapan desain rumah 7×9 meter yang simpel namun terencana akan menekan biaya konstruksi hingga 15-20%.
Kesimpulan
Memilih desain rumah 7×9 minimalis adalah solusi cerdas untuk memiliki hunian fungsional di lahan terbatas. Dengan perencanaan denah yang tepat, baik itu 2 kamar maupun 2 lantai, Anda bisa menciptakan ruang tinggal yang berkualitas.
Kuncinya ada pada pemilihan gaya arsitektur, optimasi cahaya alami, dan penggunaan furnitur yang efisien. Jangan lupa untuk menyesuaikan desain dengan kebutuhan jangka panjang keluarga Anda agar rumah tetap nyaman dihuni bertahun-tahun kemudian.
Ingin segera mewujudkan rumah impian Anda?
Segera konsultasikan rencana pembangunan Anda dengan tenaga profesional agar hasil akhirnya maksimal dan sesuai budget. Dapatkan katalog desain rumah terbaru dan konsultasi gratis hari ini dengan menghubungi tim ahli kami!
FAQ (People Also Ask)
1. Apakah rumah ukuran 7×9 cukup untuk 3 kamar tidur?
Sangat mungkin. Namun, ukuran setiap kamarnya akan lebih kecil, sekitar 2,5×3 meter. Anda harus menggunakan konsep open space untuk ruang tengah agar tidak terasa sempit.
2. Berapa luas tanah yang ideal untuk rumah 7×9?
Luas tanah minimal yang disarankan adalah 7×12 meter atau 84 $m^2$. Sisa lahan bisa digunakan untuk carport di depan dan area resapan atau taman kecil di belakang.
3. Mana yang lebih baik, rumah 7×9 satu lantai atau dua lantai?
Tergantung kebutuhan dan budget. Jika anggota keluarga lebih dari 4 orang, rumah 2 lantai lebih baik. Jika ingin hemat biaya dan perawatan mudah, satu lantai sudah sangat cukup.
4. Bagaimana cara mengatur dapur di rumah 7×9 agar tetap rapi?
Gunakan model dapur single line atau tipe L. Pasang kitchen set atas untuk menyimpan peralatan agar meja dapur tetap bersih. Gunakan exhaust fan jika dapur tidak memiliki jendela langsung.
5. Material apa yang paling awet untuk fasad rumah minimalis?
Untuk area luar, gunakan cat eksterior khusus cuaca atau batu alam yang dicoating. Pastikan juga penggunaan material aluminium untuk kusen karena lebih tahan rayap dan cuaca dibanding kayu.
Daftar Harga Layanan Kami
Harga jasa desain rumah dan bangunan yang kami berikan adalah harga termurah untuk saat ini. Karena kami ingin semua lapisan masyarakat dapat memiliki hunian yang nyaman dan aman. Juga sebagai syarat untuk pengajuan IMB atau PBG. PROMO DISKON 50%. Nikmati promo diskon 50%. Bayangkan berapa uang yang bisa Anda hemat dengan memanfaatkan promo ini. Dan Anda tidak akan menemukan dimanapun harga promo Rp 40.000/M2. Promo ini akan berakhir pada



