Denah rumah minimalis 3 kamar ukuran 7×9 – Memiliki lahan seluas 63 meter persegi seringkali membuat kita dilema, apakah cukup untuk menampung kebutuhan keluarga yang terus bertambah?
Kenyataannya, denah rumah minimalis 3 kamar ukuran 7×9 kini menjadi primadona baru bagi keluarga milenial karena ukurannya yang compact namun tetap bisa fungsional jika ditangani dengan benar.
Saya sering menemui klien yang awalnya pesimis, namun akhirnya tersenyum puas setelah melihat bagaimana lahan 7×9 atau 9×7 meter ternyata bisa disulap menjadi hunian yang lega, nyaman, dan tentunya estetik tanpa harus menguras tabungan seumur hidup.
Definisi Rumah Ukuran 7×9 dan 9×7
Sebelum membahas denah lebih jauh, mari kita bedah dulu apa sebenarnya yang dimaksud dengan dimensi ini dan bagaimana karakteristiknya.
Karakter Rumah Minimalis Ukuran 7×9

Rumah dengan dimensi ini menuntut efisiensi tinggi. Karakter utamanya adalah pemanfaatan ruang vertikal dan pengurangan sekat dinding yang tidak perlu (open plan). Rumah minimalis ukuran 7×9 biasanya memanjang ke belakang, yang memberikan tantangan tersendiri pada pencahayaan di area tengah rumah, namun memberikan privasi lebih baik untuk area istirahat di bagian belakang.
Apakah Rumah 9×7 dan 7×9 Sama?
Secara matematika luasannya sama persis, yaitu 63 m². Namun, secara arsitektural, keduanya berbeda “rasa”. Rumah 9×7 memiliki lebar muka 9 meter (melebar), sedangkan rumah 7×9 memiliki lebar muka 7 meter (memanjang). Perbedaan orientasi ini sangat mempengaruhi tata letak ruang, sirkulasi udara, dan fasad bangunan. Rumah yang melebar cenderung terlihat lebih megah dari jalan.
Keuntungannya
Keuntungan utama dari hunian dengan dimensi ini adalah biaya pembangunan yang relatif terjangkau dan perawatan yang mudah. Selain itu, dimensi ini sangat pas dengan kebanyakan kavling perumahan standar di Indonesia, sehingga nilai jual kembalinya (investasi) cenderung stabil. Anda bisa mendapatkan fungsi ruang yang optimal tanpa merasa “tenggelam” dalam rumah yang terlalu besar.
Inspirasi Denah Berdasarkan Jumlah Kamar
Jumlah kamar adalah “request” paling krusial saat merencanakan denah rumah 9×7 3 kamar. Berikut adalah bayangan bagaimana kita bisa membagi ruang di lahan ini.
1 Kamar
Model Rumah Ukuran 7×9 Meter 1 Kamar Tidur

Untuk pasangan baru atau Anda yang masih single, model ini adalah kemewahan tersendiri. Anda bisa memiliki ruang tamu super luas, walk-in closet, dan dapur yang lega. Jika dibandingkan dengan denah rumah 4×4 yang sangat mungil, ukuran 7×9 dengan 1 kamar ini akan terasa seperti apartemen suite yang lapang dan eksklusif.
2 Kamar
Desain Rumah Ukuran 9×7 2 Kamar Tidur 1 Lantai

Ini adalah konfigurasi paling aman dan lega. Desain ini memungkinkan Anda menempatkan kamar tidur di sisi kanan dan kiri yang dipisahkan oleh kamar mandi atau ruang keluarga, sehingga privasi antar penghuni sangat terjaga. Konsep ini memberikan ruang gerak yang jauh lebih bebas dibandingkan denah rumah 6×6 2 kamar yang menuntut presisi tinggi dalam pembagian ruangnya agar tidak sempit.
3 Kamar
Nah, ini tantangan utamanya. Bisakah lahan 63m² punya 3 kamar? Jawabannya: Bisa!
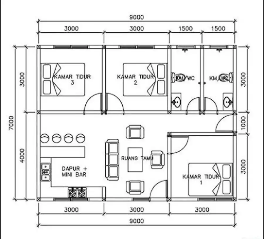
Desain Rumah Ukuran 9×7 3 Kamar

Pada tipe melebar, kita bisa menata 3 kamar dengan komposisi 1 kamar utama dan 2 kamar anak yang berdekatan. Kuncinya adalah mengurangi luas lorong (koridor) agar tidak membuang space. Desain rumah 9×7 tipe ini sangat mengandalkan ruang tengah sebagai pusat aktivitas keluarga.
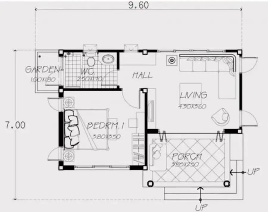
Rumah Minimalis Ukuran 7×9 3 Kamar Tidur

Untuk tipe memanjang, solusinya adalah meletakkan kamar secara berderet atau zig-zag. Biasanya satu kamar akan sedikit mengalah ukurannya (misalnya 2,5m x 2,5m) untuk kamar anak atau ruang tamu yang dikonversi menjadi kamar multifungsi.
Denah Rumah 3 Kamar Ukuran 7×9 Letter L

Tata letak Letter L sering jadi penyelamat. Sisa ruang di sudut L bisa dimanfaatkan untuk taman kecil atau laundry area, mirip dengan strategi pada denah rumah 6×5 yang mengoptimalkan sudut mati. Gambar dan denah rumah 3 kamar ukuran 7×9 model L ini juga membantu sirkulasi udara lebih lancar ke seluruh penjuru rumah.
Berdasarkan Lantai
Pilihan jumlah lantai tentu akan berdampak langsung pada Rencana Anggaran Biaya (RAB) Anda.
1 Lantai
Denah Rumah 7×9 dengan 3 Kamar 1 Lantai

Membangun 1 lantai berarti kita bermain efisiensi horizontal. Konsep ini menuntut penggunaan furnitur multifungsi. Jangan sampai rumah penuh sesak dengan barang. Jika Anda merasa 7×9 terlalu besar atau budget belum mencukupi, mungkin melihat referensi denah rumah 7×7 bisa jadi pembanding yang menarik.
Sketsa Rumah 7×9 dengan 2 Kamar 1 Lantai

Sketsa ini banyak menggunakan konsep ruang tamu menyatu dengan ruang makan untuk menghilangkan sekat masif. Anda bisa mengintip ide penataan ruang yang efisien seperti pada desain rumah subsidi modern yang meski sederhana tapi sangat adaptif dengan kebutuhan keluarga kecil.
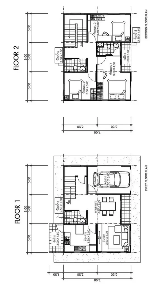
2 Lantai
Denah Rumah 9×7 3 Kamar 2 Lantai

Jika budget memungkinkan, naik ke atas adalah solusi terbaik. Lantai 1 bisa fokus untuk area publik (tamu, dapur, makan), sedangkan lantai 2 full untuk area privat. Anda bisa mencontoh tata letak dari referensi desain rumah 7×10 2 lantai yang memiliki alur sirkulasi sangat nyaman. Jangan lupa cek juga koleksi denah rumah 2 lantai lengkap kami untuk ide posisi tangga yang hemat tempat namun tetap aman.
Gaya Fasad Desain Rumah Ukuran 9×7 3 Kamar
Tampilan depan atau fasad adalah wajah dari rumah Anda. Pilihan gaya akan menentukan karakter hunian rumah minimalis 9×7 Anda.
Minimalis Modern

Gaya yang tak lekang oleh waktu. Mengandalkan garis tegas, atap datar atau miring satu arah, dan warna monokrom. Sangat cocok untuk desain rumah minimalis 3 kamar ukuran 7×9 karena perawatannya yang mudah dan biaya konstruksi yang efisien.
Skandinavia

Gaya ini sedang tren. Mengutamakan pencahayaan alami, warna putih, dan unsur kayu. Cocok untuk membuat model rumah 9×7 terlihat lebih “ringan”, bersih, dan luas, memberikan kesan hangat yang homy.
Industrial

Bagi Anda yang berjiwa muda, gaya industrial dengan bata ekspos atau semen acian (unfinished) bisa menekan biaya finishing. Konsep raw ini juga sering diterapkan pada proyek investasi seperti desain rumah kost minimalis 2 lantai dan biaya yang efisien namun tetap kekinian dan instagramable.
Klasik

Meskipun lahan terbatas, sentuhan klasik dengan pilar kecil atau profil jendela yang cantik bisa diterapkan pada desain rumah minimalis 9×7 agar terlihat lebih mewah, elegan, dan berkelas, tanpa harus terlihat berlebihan.
Tropis

Mengingat kita di Indonesia, gaya tropis dengan tritisan atap lebar dan banyak bukaan ventilasi adalah pilihan paling masuk akal agar rumah tidak pengap. Ini mirip dengan pendekatan pada desain rumah 6×8 2 kamar yang mengutamakan aliran udara silang.
Wujudkan Desain Denah Rumah Ukuran 7×9 Anda
Membangun rumah bukan sekadar menumpuk bata, tapi merangkai masa depan. Jangan sampai salah perencanaan yang berujung pada pembengkakan biaya atau struktur bangunan yang tidak aman.
Siapakah Dinaka Arsitek

Kami adalah Dinaka Arsitek, perusahaan arsitektur terbaik di Indonesia yang berbasis di Kediri. Kami tidak hanya melayani klien lokal, tetapi siap melayani kebutuhan desain rumah, desain interior, hitung struktur, dan konstruksi di seluruh Indonesia hingga Asia secara online maupun offline.
Layanan Dinaka Arsitek
Kami menyediakan solusi lengkap satu atap untuk kebutuhan properti Anda. Berikut adalah layanan unggulan yang kami tawarkan:
- Jasa Desain Rumah Minimalis Modern: Kami ahli menciptakan denah rumah 9×7 dan desain rumah 9×7 yang estetik dan fungsional sesuai karakter Anda.
- Jasa Desain Kos-kosan 2 Lantai: Mengubah lahan sempit menjadi aset produktif dengan tata letak efisien untuk passive income.
- Arsitek Perumahan dan Siteplan: Merancang kawasan hunian yang nyaman, teratur, dan bernilai jual tinggi bagi developer.
- Jasa Gambar Rumah Mewah dan Villa: Menghadirkan kemewahan personal dalam setiap garis desain untuk kenyamanan maksimal.
- Jasa Desain Interior Rumah dan Kantor: Menciptakan suasana ruang yang mendukung produktivitas dan kenyamanan visual.
- Konsultan Struktur Bangunan: Memastikan keamanan bangunan Anda dengan perhitungan teknis yang presisi dan standar SNI.
- Kontraktor Rumah dan Renovasi: Eksekusi pembangunan yang rapi, transparan, dan tepat waktu dengan tenaga ahli.
Gratis Konsultasi – Hubungi Kami

Jangan biarkan kebingungan menghambat impian Anda. Segera hubungi Dinaka Arsitek untuk mendapatkan solusi terbaik bagi sketsa rumah 7×9 atau model rumah ukuran 7×9 meter impian Anda.
Kesimpulan
Lahan ukuran 7 x 9 atau 9×7 meter bukanlah halangan untuk memiliki hunian 3 kamar yang nyaman. Dengan pemilihan denah rumah 9×7 3 kamar yang tepat, pemanfaatan ruang vertikal, serta sentuhan tangan dingin arsitek profesional, Anda bisa mendapatkan rumah yang terasa lega dan fungsional. Baik itu satu lantai maupun dua lantai, kuncinya ada pada perencanaan yang matang. Percayakan perencanaan tersebut pada ahlinya agar hasil akhir rumah Anda memuaskan dan menjadi tempat istirahat terbaik bagi keluarga.
FAQ
Apakah ukuran 7×9 dan 9×7 sama?
Secara luas tanah, keduanya sama persis yaitu 63 m². Namun, perbedaannya terletak pada orientasi lahan terhadap jalan. Ukuran 9×7 memiliki lebar muka (fasad) 9 meter yang membuatnya terlihat lebih megah dari depan, sedangkan 7×9 memanjang ke belakang yang memberikan privasi lebih pada area belakang rumah.
Apakah mungkin membuat 3 kamar tidur di lahan 7×9 satu lantai?
Sangat mungkin. Tantangannya adalah membagi ukuran kamar agar tetap manusiawi dan nyaman. Biasanya, satu kamar utama dibuat standar, sedangkan dua kamar lainnya dibuat lebih compact untuk anak-anak. Penggunaan furniture tanam (built-in) sangat disarankan untuk menghemat tempat.
Berapa estimasi biaya bangun rumah ukuran 7×9?
Biaya sangat bergantung pada spesifikasi material, lokasi, dan gaya bangunan. Namun, untuk rumah minimalis standar, kisaran biayanya bisa mulai dari Rp 3,5 juta hingga Rp 4,5 juta per meter persegi. Untuk hitungan yang akurat dan menghindari over-budget, sebaiknya gunakan Jasa Hitung RAB dari arsitek profesional.
Gaya desain apa yang cocok untuk lahan sempit seperti ini?
Gaya Minimalis Modern dan Skandinavia adalah yang terbaik. Kedua gaya ini mengutamakan warna terang, bukaan jendela besar, dan minim ornamen rumit, yang secara visual membuat ruangan terasa jauh lebih luas dan lega dibandingkan aslinya.
Kenapa harus menggunakan jasa arsitek untuk rumah kecil?
Justru di lahan kecillah peran arsitek sangat krusial. Arsitek bisa melihat potensi ruang yang tidak terpikirkan oleh orang awam, mengatur sirkulasi udara agar rumah tidak pengap, dan menghitung struktur agar bangunan aman jika sewaktu-waktu ingin ditingkat menjadi 2 lantai.
Apakah ada tips agar rumah 7×9 terasa lebih luas?
Gunakan konsep open plan dengan menggabungkan ruang tamu dan ruang makan tanpa sekat. Pasang cermin besar di dinding ruang tengah, gunakan cat warna putih atau cerah, dan pastikan plafon rumah cukup tinggi (minimal 3,5 meter) untuk sirkulasi udara yang baik.
Daftar Harga Layanan Kami
Harga jasa desain rumah dan bangunan yang kami berikan adalah harga termurah untuk saat ini. Karena kami ingin semua lapisan masyarakat dapat memiliki hunian yang nyaman dan aman. Juga sebagai syarat untuk pengajuan IMB atau PBG. PROMO DISKON 50%. Nikmati promo diskon 50%. Bayangkan berapa uang yang bisa Anda hemat dengan memanfaatkan promo ini. Dan Anda tidak akan menemukan dimanapun harga promo Rp 40.000/M2. Promo ini akan berakhir pada


