Denah rumah 1 kamar – Halo! Selamat datang di sini. Kalau boleh jujur, dulu saya selalu berpikir kalau punya rumah besar itu adalah puncak impian. Tapi seiring berjalannya waktu, saya sadar, kebahagiaan itu bukan soal luas, tapi soal rasa. Di sinilah denah rumah 1 kamar bukan lagi sekadar pilihan karena lahan terbatas, tapi sebuah keputusan cerdas untuk hidup lebih efisien, bermakna, dan bebas dari beban berlebih.
Hunian dengan satu kamar tidur kini menjadi simbol gaya hidup praktis, sangat ideal untuk para profesional lajang, pasangan yang baru memulai hidup bersama, atau bahkan mereka yang memasuki masa pensiun dan ingin menikmati hidup tanpa repot. Keuntungannya jelas: biaya pembangunan dan perawatan yang lebih ramah di kantong, lebih hemat energi, dan tentu saja, lebih sedikit waktu yang dihabiskan untuk bersih-bersih.
Tantangannya tentu ada: bagaimana menyulap ruang yang mungil agar tidak terasa sesak, tetap fungsional, dan pastinya, tetap homey? Nah, di artikel ini, saya akan ajak Anda menjelajahi berbagai inspirasi denah dan strategi cerdas untuk mengubah hunian mungil menjadi istana pribadi yang maksimal.
Inspirasi Desain rumah kecil 1 kamar tidur
Setiap ukuran lahan memiliki potensi uniknya sendiri. Kuncinya adalah menemukan denah yang paling pas dengan kebutuhan dan gaya hidup kita. Mari kita bedah satu per satu!
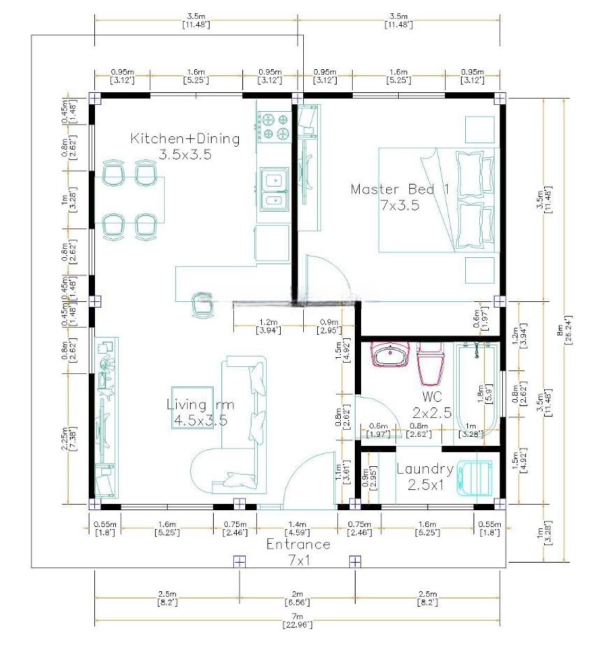
Denah Rumah 5×7 Meter 1 Kamar Tidur

Dengan luas total 35 meter persegi, efisiensi adalah segalanya. Denah ini biasanya mengusung konsep linier atau terbuka untuk memaksimalkan setiap jengkalnya.
Begitu masuk, kita akan disambut oleh area multifungsi yang menggabungkan ruang tamu dan dapur. Untuk menjaga privasi, kamar tidur dan kamar mandi diletakkan di bagian belakang rumah.
Kunci utamanya adalah meniadakan sekat permanen antara ruang tamu dan dapur agar sirkulasi udara dan cahaya lebih lancar, sehingga rumah tidak terasa pengap. Sedikit sentuhan teras di bagian depan juga bisa menjadi area santai tambahan yang menyenangkan.
Denah Rumah Minimalis 7×7 1 Kamar

Lahan 49 meter persegi seringkali dipaksakan untuk memiliki dua atau bahkan tiga kamar tidur kecil. Tapi, coba bayangkan jika seluruh ruang itu kita dedikasikan untuk denah rumah minimalis 1 kamar.
Hasilnya? Sebuah kemewahan ruang. Kita bisa memiliki kamar tidur utama yang sangat luas, area keluarga yang lega, dapur yang nyaman untuk bereksperimen, bahkan mungkin ruang cuci jemur khusus.
Ini adalah cara kita mendefinisikan ulang arti “nilai” sebuah hunian, di mana kualitas hidup dan kenyamanan sehari-hari jauh lebih berharga daripada sekadar jumlah kamar.
Denah Rumah 6×6 1 Kamar Sederhana

Ini adalah denah klasik untuk rumah Tipe 36, sebuah ukuran yang sangat populer di Indonesia. Untuk menciptakan rumah 1 kamar sederhana yang optimal di lahan 36 meter persegi, penataan yang efisien menjadi fokus utama.
Kamar tidur bisa diletakkan di depan atau belakang, sementara area tengah menjadi pusat aktivitas yang menyatukan ruang keluarga dan ruang makan. Untuk menekan biaya, dapur dan kamar mandi seringkali ditempatkan bersebelahan agar instalasi pipa lebih simpel.
Kesederhanaan juga tercermin dari penggunaan material yang terjangkau namun tetap berkualitas dan desain atap pelana yang tak lekang oleh waktu.
Desain Rumah Kecil 1 Kamar Tidur Tipe 21

Inilah tantangan sesungguhnya dalam dunia desain hunian mungil. Dengan luas hanya 21 meter persegi, setiap pilihan desain harus diperhitungkan dengan matang. Pada dasarnya, ini adalah sebuah apartemen studio yang fungsi ruang tidurnya dipisahkan dengan cerdas. Ruang tamu, dapur, dan tempat tidur berada dalam satu area besar, dengan hanya kamar mandi yang tertutup sepenuhnya.
Di sinilah kreativitas berperan:
- Furnitur Ajaib: Wajib hukumnya menggunakan perabotan multifungsi, seperti sofa yang bisa jadi tempat tidur, meja makan lipat, dan ranjang dengan laci penyimpanan di bawahnya.
- Ilusi Optik: Gunakan cat warna putih atau sangat terang, pasang jendela besar, dan tempatkan cermin di dinding untuk menciptakan ilusi ruang yang lebih luas.
- Karakter Kuat: Meski mungil, berikan sentuhan gaya yang jelas seperti Scandinavian, Industrial, atau Tropis agar hunian terasa berkelas dan disengaja, bukan sekadar sempit.
Desain Rumah Mini 1 Kamar Tipe 36

Alih-alih mengikuti denah standar Tipe 36 dengan dua kamar tidur sempit, kita bisa mengubahnya menjadi desain rumah mini 1 kamar yang super nyaman. Dengan hanya satu kamar tidur, ukurannya menjadi jauh lebih besar.
Kita bahkan bisa menambahkan area walk-in closet atau sudut kerja pribadi di dalamnya. Konsekuensinya, ruang keluarga dan dapur menjadi sangat lega dan terbuka. Menerapkan konsep open space dan langit-langit yang tinggi akan membuat rumah Tipe 36 ini terasa jauh lebih megah dari ukuran sebenarnya.
Ukuran 5×7 Rumah 1 Kamar Tidur Memanjang

Bentuk lahan yang memanjang secara alami akan menciptakan alur atau flow yang jelas di dalam rumah. Biasanya, denah ini menempatkan area publik seperti ruang tamu di bagian paling depan, diikuti area semi-privat seperti dapur dan ruang makan, dan diakhiri dengan zona privat yaitu kamar tidur dan kamar mandi di bagian paling belakang.
Tantangannya adalah menghindari kesan seperti lorong yang sempit. Solusinya? Gunakan jendela besar di sisi dinding yang panjang, pasang cermin untuk memberi kedalaman visual, dan gunakan furnitur sebagai pembatas zona imajiner tanpa menghalangi jalur sirkulasi.
Desain Rumah 1 Kamar Sederhana Konsep Mezzanine

Ini adalah solusi jenius untuk rumah mungil dengan plafon yang tinggi. Konsep mezzanine adalah tentang menaklukkan ruang vertikal! Mezzanine adalah lantai tambahan yang tidak menutupi seluruh luas ruangan di bawahnya.
Dalam desain rumah 1 kamar sederhana, area mezzanine ini sangat ideal untuk dijadikan kamar tidur. Dengan begitu, seluruh lantai dasar bisa bebas digunakan untuk ruang keluarga, dapur, dan area kerja.
Syaratnya, tinggi plafon minimal sekitar 4.4 meter agar kedua level tetap nyaman untuk beraktivitas. Tangga menuju mezzanine pun bisa menjadi elemen dekorasi yang menarik, misalnya dengan tangga spiral hemat ruang atau tangga dengan laci penyimpanan terintegrasi.
Denah Rumah Ukuran 5×7 Minimalis 1 Kamar

Mirip dengan denah 5×7 pada poin pertama, namun di sini penekanannya lebih pada filosofi desain minimalis itu sendiri. Semua elemen yang tidak esensial akan dihilangkan untuk menciptakan ruang yang tenang dan fungsional.
Ciri khasnya adalah palet warna yang sangat netral (putih, abu-abu, krem), furnitur dengan bentuk geometris sederhana, dan memaksimalkan penyimpanan tersembunyi agar rumah selalu rapi. Pencahayaan alami adalah elemen kunci, jadi jendela besar tanpa banyak ornamen menjadi wajib hukumnya.
Desain Rumah Mini 1 Kamar Tanpa Sekat

Konsep open plan atau tanpa sekat bukan hanya trik agar ruangan terasa luas, tapi juga sebuah pilihan gaya hidup yang mendukung interaksi. Desain ini menghilangkan semua dinding pembatas antara ruang tamu, ruang makan, dan dapur.
Bahkan, kamar tidur pun bisa hanya dipisahkan dengan partisi kaca, rak buku dua sisi, atau penataan furnitur yang cerdas. Dengan meniadakan sekat, komunikasi antar anggota keluarga menjadi lebih cair.
Seseorang yang sedang memasak tetap bisa mengobrol dengan yang sedang bersantai di sofa. Namun, perlu diingat, konsep ini mungkin kurang cocok jika Anda sering menerima tamu formal karena privasi yang lebih terbatas.
Desain Denah Rumah 1 Kamar Dengan Teras

Menghubungkan ruang dalam dan luar adalah cara ampuh untuk memperluas area tinggal kita secara visual dan fungsional. Denah ini wajib memiliki akses langsung dari ruang keluarga ke teras atau taman kecil melalui pintu kaca geser yang lebar.
Teras ini bisa menjadi “ruang tamu kedua” untuk menikmati kopi pagi, berkebun dalam pot, atau sekadar bersantai sore hari. Menggunakan material lantai yang senada antara area dalam dan teras akan semakin memperkuat kesan menyatu dan tanpa batas.
Desain Denah Rumah 1 Kamar Ukuran 5×8 Meter

Tambahan satu meter panjang pada lahan seluas 40 meter persegi mungkin terdengar sepele, tapi dampaknya bisa sangat signifikan. Jika denah 5×8 meter umumnya dibuat untuk dua kamar tidur, mengalihkannya menjadi satu kamar akan memberikan ruang ekstra yang berharga.
Kelebihan luas sekitar 5 meter persegi ini bisa kita alokasikan untuk kamar mandi yang lebih lega, area cuci jemur khusus, dapur dengan meja konter yang lebih panjang, atau bahkan sudut kerja yang nyaman.
Ini membuktikan bahwa sedikit penyesuaian pada ukuran rumah 1 kamar dapat meningkatkan fungsionalitasnya secara dramatis.
Wujudkan Desain Rumah 1 Kamar Impian Anda
Melihat semua inspirasi ini pasti membuat Anda semakin bersemangat, kan? Tapi, menerjemahkan ide dan gambar menjadi denah yang presisi, fungsional, aman secara struktur, dan sesuai aturan bangunan adalah sebuah langkah krusial. Di sinilah peran arsitek profesional menjadi tak ternilai.
Siapakah Dinaka Arsitek?

Jika Anda mencari partner yang tepat untuk mewujudkan hunian impian, perkenalkan Dinaka Arsitek. Berbasis di Kediri, kami adalah perusahaan arsitektur profesional yang siap melayani kebutuhan desain dan konstruksi di seluruh Indonesia hingga Asia.
Kami percaya bahwa rumah bukan sekadar bangunan, melainkan cerminan kepribadian dan gaya hidup penghuninya. Oleh karena itu, tim kami yang terdiri dari arsitek berpengalaman dan bersertifikat resmi (STRA) selalu berkomitmen memberikan desain terbaik yang personal dan berkualitas.
Layanan Jasa Dinaka Arsitek

Kami menyediakan solusi lengkap satu atap untuk semua kebutuhan Anda, mulai dari ide hingga rumah siap huni. Layanan kami meliputi:
- Desain Rumah Minimalis Modern: Merancang hunian yang elegan, fungsional, dan sesuai tren masa kini.
- Arsitek Perumahan dan Siteplan: Merencanakan kawasan hunian yang terpadu dan efisien.
- Jasa Gambar Rumah Mewah dan Villa: Menciptakan desain premium dengan detail dan estetika tinggi.
- Desain Interior Rumah: Menata ruang dalam yang harmonis, nyaman, dan sesuai karakter Anda.
- Konsultan Struktur Bangunan: Menghitung dan merancang struktur yang kokoh, aman, dan efisien untuk menjamin keamanan bangunan Anda.
- Kontraktor Rumah dan Renovasi: Melaksanakan proses pembangunan dari awal hingga selesai dengan standar kualitas terbaik.
Setiap proyek bersama kami akan dilengkapi dengan gambar kerja detail, visualisasi 3D yang realistis, hingga Rencana Anggaran Biaya (RAB) yang transparan.
Hubungi Kami

Jangan biarkan impian Anda hanya menjadi gambar di kepala. Diskusikan dengan ahlinya. Tim Dinaka Arsitek siap membantu Anda mengambil langkah pertama. Manfaatkan layanan Konsultasi Gratis kami untuk mulai merancang rumah 1 kamar impian Anda hari ini!
Kesimpulan
Pada akhirnya, denah rumah 1 kamar adalah bukti bahwa kualitas tidak selalu ditentukan oleh kuantitas. Dengan perencanaan yang matang dan desain yang cerdas, hunian mungil bisa menjadi ruang hidup yang sangat nyaman, fungsional, dan penuh gaya.
Kunci kesuksesannya terletak pada denah yang efisien dan kreativitas dalam menata ruang. Berinvestasi pada jasa arsitek profesional seperti Dinaka Arsitek adalah cara terbaik untuk memastikan setiap meter persegi lahan Anda dimanfaatkan secara maksimal dan diubah menjadi rumah idaman yang sempurna.
Simak Juga : Tangga Unik
FAQ (Frequently Asked Questions)
- Apakah rumah 1 kamar cocok untuk keluarga kecil?
Tentu saja! Rumah 1 kamar sangat ideal untuk pasangan muda atau keluarga dengan satu anak balita. Jika di kemudian hari ada kebutuhan ruang tambahan, Anda bisa memilih desain dengan konsep rumah tumbuh (modular) yang memungkinkan penambahan kamar baru tanpa harus merombak struktur utama bangunan.
- Bagaimana cara membuat rumah 1 kamar terasa luas?
Ada beberapa trik jitu yang bisa diterapkan. Pertama, gunakan konsep ruang terbuka (open space) untuk meminimalkan sekat. Kedua, pilih palet warna cat yang cerah dan netral seperti putih atau krem untuk memantulkan cahaya. Ketiga, maksimalkan pencahayaan alami dengan jendela besar atau skylight. Terakhir, gunakan furnitur multifungsi dan pasang cermin di dinding untuk menciptakan ilusi kedalaman ruang.
- Apa keunggulan utama rumah 1 kamar dibandingkan rumah yang lebih besar?
Keunggulan utamanya terletak pada efisiensi. Biaya pembangunan dan perawatannya jauh lebih rendah, sehingga lebih ramah di kantong. Selain itu, rumah ini lebih hemat energi, lebih mudah dan cepat dibersihkan, serta mendorong gaya hidup minimalis yang lebih fokus pada hal-hal esensial. Ini juga menjadikannya pilihan investasi properti sewa yang sangat menarik.
- Berapa ukuran rumah 1 kamar yang ideal?
Ukuran ideal sangat bergantung pada kebutuhan, namun umumnya berkisar antara 21 meter persegi (Tipe 21) hingga 45 meter persegi (Tipe 45). Ukuran seperti Tipe 36 menjadi pilihan yang sangat populer karena memberikan ruang yang cukup seimbang antara area privat (kamar tidur) dengan area komunal (ruang keluarga dan dapur), bahkan seringkali masih menyisakan sedikit lahan untuk teras atau taman kecil.
- Bisakah rumah 1 kamar dikembangkan menjadi dua kamar di kemudian hari?
Sangat bisa, terutama jika sejak awal Anda sudah merencanakannya dengan konsep rumah tumbuh atau desain modular. Penambahan ruang bisa dilakukan secara horizontal (ke samping atau belakang lahan sisa) atau secara vertikal dengan menambahkan lantai mezzanine jika tinggi plafon memungkinkan. Berkonsultasi dengan arsitek sejak awal akan sangat membantu mempersiapkan struktur bangunan untuk pengembangan di masa depan.
- Apa tantangan terbesar dalam mendesain rumah ‘tanpa sekat’ dan bagaimana solusinya?
Tantangan terbesarnya adalah menciptakan definisi dan batasan antar-ruang tanpa menggunakan dinding. Jika tidak ditata dengan baik, rumah bisa terasa seperti satu ruangan besar yang berantakan. Solusinya adalah menggunakan “pembatas imajiner”, seperti menempatkan karpet untuk menandai area ruang tamu, menggunakan lampu gantung di atas meja makan untuk mendefinisikan zona makan, atau memanfaatkan furnitur seperti rak buku terbuka atau kitchen island sebagai pemisah visual yang fungsional.
- Bagaimana cara memilih furnitur yang tepat untuk desain rumah kecil 1 kamar tidur?
Kuncinya ada tiga: multifungsi, proporsional, dan ringan secara visual. Pilihlah furnitur yang memiliki lebih dari satu fungsi, seperti sofa bed, meja kopi dengan ruang penyimpanan, atau ranjang dengan laci. Pastikan ukuran furnitur sesuai dengan luas ruangan (jangan terlalu besar). Terakhir, pilih furnitur dengan desain yang “ringan”, misalnya yang memiliki kaki ramping agar lantai tetap terlihat, sehingga menciptakan kesan yang lebih lapang.
Daftar Harga Layanan Kami
Harga jasa desain rumah dan bangunan yang kami berikan adalah harga termurah untuk saat ini. Karena kami ingin semua lapisan masyarakat dapat memiliki hunian yang nyaman dan aman. Juga sebagai syarat untuk pengajuan IMB atau PBG. PROMO DISKON 50%. Nikmati promo diskon 50%. Bayangkan berapa uang yang bisa Anda hemat dengan memanfaatkan promo ini. Dan Anda tidak akan menemukan dimanapun harga promo Rp 40.000/M2. Promo ini akan berakhir pada


