Denah Rumah 7×7 – Merancang denah rumah 7×7 dengan baik sangat penting sebelum membangun hunian. Dengan ukuran yang tidak terlalu besar, perencanaan ruang harus efisien agar tetap nyaman dan fungsional.
Rumah 7×7 bisa menjadi pilihan ideal bagi keluarga kecil, pasangan muda, atau mereka yang menginginkan hunian minimalis yang tetap stylish dan nyaman.
Dalam artikel ini, kita akan membahas berbagai inspirasi denah rumah 7×7, mulai dari desain minimalis, konsep 2 kamar tidur, hingga opsi rumah modern dan mushola dalam rumah. Mari temukan desain yang paling sesuai dengan kebutuhan Anda!
Inspirasi Denah Rumah Ukuran 7×7 Meter Minimalis

Desain Minimalis untuk Hunian Fungsional dan Estetis
Desain minimalis menekankan pada kesederhanaan dan fungsi, tanpa mengorbankan estetika. Beberapa karakteristik utama dari denah rumah 7×7 minimalis meliputi:
- Pemilihan warna netral seperti putih, abu-abu, atau beige untuk menciptakan kesan luas.
- Pencahayaan alami maksimal melalui jendela besar atau skylight untuk menghemat energi.
- Furniture multifungsi seperti sofa bed, meja lipat, atau rak dinding untuk mengoptimalkan ruang.
Denah Rumah 7×7 Minimalis dengan Tata Ruang Efektif
Untuk menciptakan tata ruang yang optimal, berikut beberapa ide denah rumah 7×7:
- Denah dengan konsep open space, menggabungkan ruang tamu, dapur, dan area makan tanpa sekat untuk menciptakan kesan lebih luas.
- Penempatan jendela besar di beberapa sudut untuk pencahayaan alami maksimal.
- Dapur berbentuk L atau U, agar lebih fungsional tanpa memakan banyak ruang.
Simak Juga : Denah rumah 6×5
Denah Rumah 7×7 dengan 2 Kamar Tidur

Rekomendasi Layout untuk Keluarga Kecil
Bagi keluarga kecil atau pasangan yang berencana memiliki anak, denah hunian ukuran 7×7 dengan 2 kamar tidur adalah pilihan ideal. Ruangan bisa diatur sebagai berikut:
- Kamar utama untuk orang tua dengan ukuran yang lebih besar.
- Kamar kedua yang bisa difungsikan sebagai kamar anak atau ruang kerja.
- Dapur dan ruang makan terbuka agar terasa lebih luas.
- Teras atau halaman belakang kecil untuk area hijau tambahan.
Denah Rumah 7×7 dengan 3 Kamar Tidur

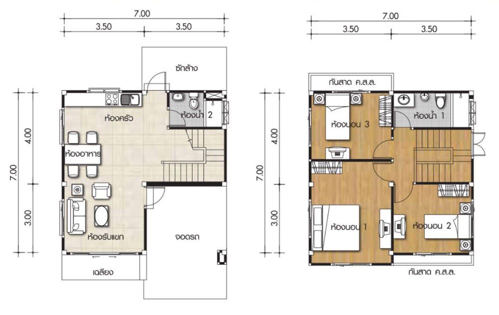
Meskipun ukurannya terbatas, rumah 7×7 bisa dirancang untuk memiliki 3 kamar tidur. Biasanya, ini dicapai dengan membuat rumah 2 lantai. Lantai pertama bisa digunakan untuk ruang tamu, dapur, dan satu kamar tidur, sedangkan lantai kedua untuk dua kamar tidur lainnya.
Simak Juga : Rumah Minimalis 6×8
Denah Rumah 7×7 2 Lantai

Dengan membuat rumah 2 lantai, Anda bisa memaksimalkan ruang yang ada. Lantai pertama bisa difungsikan sebagai area umum seperti ruang tamu, dapur, dan ruang makan, serta satu kamar tidur. Lantai kedua bisa menjadi area privat dengan kamar tidur tambahan, kamar mandi, dan mungkin balkon kecil untuk bersantai.
Simak Juga : Eksterior rumah minimalis modern
Denah Rumah 7×7 dengan 1 Kamar Tidur

Untuk denah dengan 1 kamar tidur, Anda bisa memiliki ruang yang lebih lega untuk setiap area. Anda bisa memiliki ruang tamu yang lebih luas, dapur yang nyaman, dan kamar tidur yang lega. Denah ini cocok untuk pasangan muda atau mereka yang tinggal sendiri.
Denah Rumah 7×7 dengan Taman Depan Belakang Luas

Ciri Khas Rumah Modern dalam Desain Rumah Kecil
Jika Anda menginginkan tampilan yang lebih elegan, konsep rumah modern bisa menjadi inspirasi. Desain modern biasanya memiliki ciri khas berikut:
- Penggunaan material kaca, beton, dan kayu untuk tampilan yang bersih dan stylish.
- Penerapan warna monokrom dengan kombinasi aksen kayu untuk estetika modern.
- Pencahayaan LED dan lampu tersembunyi untuk suasana yang lebih hangat dan nyaman
Simak Juga : Kost Tingkat
Denah Rumah 7×7 dengan Mushola di Dalam Rumah

Pentingnya Mushola dalam Rumah bagi Keluarga Muslim
Bagi keluarga Muslim, memiliki mushola kecil dalam rumah adalah nilai tambah yang penting. Denah rumah 7×7 dengan mushola bisa diatur agar tetap fungsional tanpa mengorbankan ruang lain.
Rumah 7×7 dengan Mushola yang Nyaman
Beberapa cara mengatur mushola dalam rumah kecil:
- Memanfaatkan sudut ruang kosong di dekat ruang keluarga atau kamar tidur.
- Gunakan partisi atau tirai agar tetap terjaga privasi.
- Ventilasi dan pencahayaan yang baik agar ruang ibadah tetap nyaman.
Simak Juga : Model Rumah Minimalis 5×7
Keunggulan Denah Hunian Ukuran 7×7

1. Ukuran yang Ideal untuk Keluarga Kecil
Rumah dengan ukuran 7×7 meter menawarkan ruang yang cukup untuk keluarga kecil atau pasangan baru. Dengan perencanaan yang matang, rumah ini bisa memiliki dua kamar tidur, ruang tamu, dapur, kamar mandi, dan bahkan area tambahan seperti mushola atau taman kecil.
2. Efisiensi Ruang dan Kepraktisan
Dengan lahan yang terbatas, desain rumah harus dibuat seefisien mungkin. Konsep open space, penggunaan furniture multifungsi, dan tata letak yang baik akan membantu menciptakan hunian yang terasa luas meskipun berada di lahan kecil.
3. Mudah dalam Perawatan dan Biaya Terjangkau
Rumah dengan ukuran compact lebih mudah dalam perawatan dan memiliki biaya pembangunan yang lebih terjangkau dibandingkan rumah yang lebih besar. Hal ini cocok bagi mereka yang ingin membangun rumah dengan budget minimalis namun tetap nyaman.
Simak Juga : Denah rumah 6×10
Tips Mendesain Rumah 7×7 Agar Terasa Luas

1. Gunakan Furniture Multifungsi
Furniture seperti tempat tidur dengan laci penyimpanan, meja lipat, dan rak dinding sangat membantu menghemat ruang.
2. Maksimalkan Pencahayaan Alami
Memiliki jendela besar dan skylight akan membuat rumah terasa lebih luas dan hemat energi.
3. Terapkan Konsep Open Space
Mengurangi penggunaan sekat atau dinding pembatas antara ruang tamu, dapur, dan area makan akan menciptakan kesan luas.
Simak Juga : Desain rumah 2 lantai 6×10
Kesimpulan
Denah rumah 7×7 merupakan pilihan ideal bagi mereka yang menginginkan hunian minimalis, modern, dan nyaman. Dengan perencanaan yang tepat, rumah ini bisa terasa luas dan fungsional meskipun ukurannya terbatas.
Baik Anda memilih desain minimalis, modern, dengan 2 kamar, atau mushola, selalu sesuaikan dengan kebutuhan dan gaya hidup Anda. Jika membutuhkan bantuan lebih lanjut dalam merancang denah rumah impian Anda, jangan ragu untuk menghubungi jasa desain arsitektur profesional!
FAQ: Inspirasi & Solusi Denah Rumah 7×7 Meter
1. Apakah lahan 7×7 meter (49 m2) cukup untuk rumah dengan 3 kamar tidur?
Cukup, namun memerlukan penataan yang sangat efisien. Umumnya, denah 7×7 dengan 3 kamar tidur menggunakan konsep open plan (tanpa sekat berlebih) untuk area ruang tamu dan dapur. Pilihan lainnya adalah membangun rumah 2 lantai agar setiap kamar memiliki ukuran yang lebih ideal dan sirkulasi udara yang lebih baik.
2. Bagaimana pembagian tata ruang yang ideal untuk tipe 49 ini?
Untuk rumah 1 lantai, pembagian yang paling umum adalah:
-
2 Kamar Tidur: Ukuran kamar bisa lebih luas (sekitar 3 x 3Â m).
-
Area Komunal: Ruang tamu dan ruang makan menyatu.
-
Service Area: 1 Kamar mandi dan dapur minimalis di bagian belakang atau samping.
-
Sisa Lahan: Bisa dimanfaatkan untuk carport kecil atau taman depan minimalis.
3. Apa keunggulan membangun rumah ukuran 7×7?
-
Efisiensi Biaya: Biaya material dan tukang lebih terkontrol karena volume bangunan yang tidak terlalu besar.
-
Perawatan Mudah: Luas bangunan yang kompak memudahkan pembersihan dan pemeliharaan rutin.
-
Hemat Lahan: Sangat cocok untuk kavling perkotaan yang terbatas.
-
Pajak Lebih Ringan: Luas bangunan di bawah 50 m2Â biasanya memiliki beban PBB yang lebih rendah.
4. Bagaimana cara agar rumah 7×7 tidak terasa sempit?
Ada beberapa teknik desain yang bisa diterapkan:
-
High Ceiling: Buat plafon lebih tinggi (3.5 – 4 meter) untuk menciptakan kesan luas dan sejuk.
-
Pencahayaan Alami: Gunakan jendela besar atau skylight agar cahaya matahari masuk maksimal.
-
Warna Terang: Gunakan cat dinding warna putih, krem, atau abu-abu muda.
-
Furniture Multifungsi: Gunakan perabot yang memiliki fungsi ganda, seperti tempat tidur dengan laci di bawahnya.
5. Apakah bisa dibuatkan carport untuk mobil pada lahan 7×7?
Bisa, asalkan posisi bangunan digeser sedikit ke belakang atau ke samping. Biasanya, area carport standar membutuhkan lahan minimal 3 x 5Â meter. Dengan total lebar lahan 7 meter, Anda masih memiliki sisa 4 meter untuk lebar bangunan utama.
6. Berapa estimasi biaya bangun rumah 7×7 saat ini?
Estimasi biaya sangat bergantung pada spesifikasi material dan lokasi pembangunan. Secara kasar, dengan asumsi biaya bangun minimalis Rp 3,5 juta – Rp 4,5 juta per m2, maka total biaya konstruksi untuk tipe 49 berkisar antara Rp 170 juta hingga Rp 220 juta (tidak termasuk harga tanah).
Arsitek yang bekerja di Dinaka Arsitek. Berkomitmen untuk terus memberikan yang terbaik melalui setiap proyek yang dikerjakan. Keahlian teknis, dan dedikasi profesional dalam setiap proyek yang ditangani
Daftar Harga Layanan Kami
Harga jasa desain rumah dan bangunan yang kami berikan adalah harga termurah untuk saat ini. Karena kami ingin semua lapisan masyarakat dapat memiliki hunian yang nyaman dan aman. Juga sebagai syarat untuk pengajuan IMB atau PBG. PROMO DISKON 50%. Nikmati promo diskon 50%. Bayangkan berapa uang yang bisa Anda hemat dengan memanfaatkan promo ini. Dan Anda tidak akan menemukan dimanapun harga promo Rp 40.000/M2. Promo ini akan berakhir pada


